revit
Building Section
This section goes through the kitchen.
Cover Page
Here, we have two interior and one exterior 3D views.
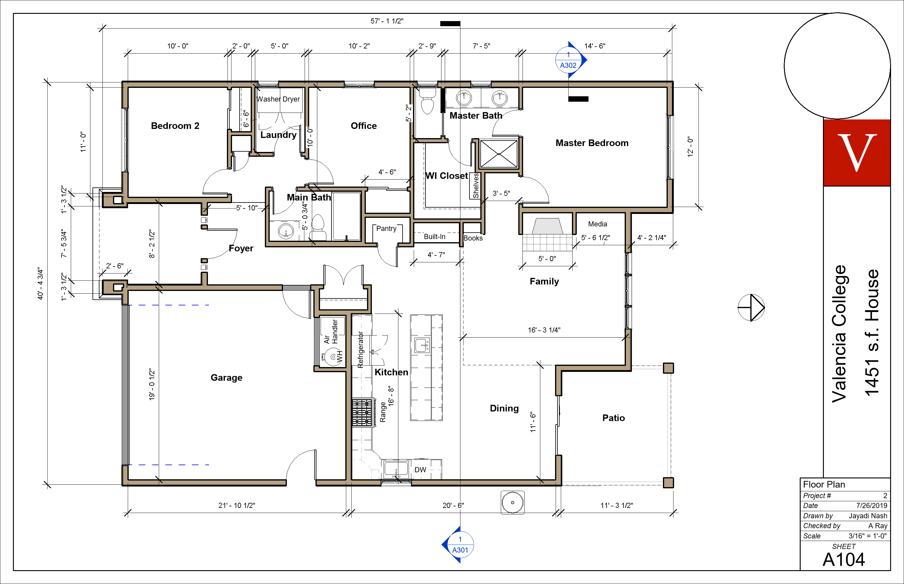
Floor Plan
I created my own wall types and put together this floor plan.
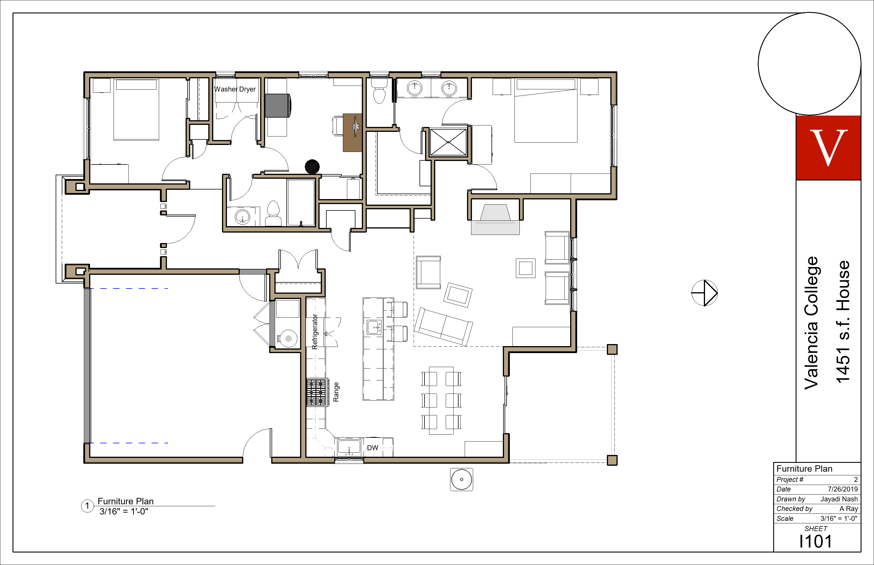
Furniture Plan
I took some furniture from the Revit library and downloaded some from the Internet.
Plumbing Riser Diagram
For the main bathroom.
Building Elevations
North and East Elevations
Wall Section
This diagram uses MasterFormat numbers.

